Wilo Trockenläufer-Standard-Einzelpumpe
IL 250/375-75/4,DN250,75kW
Kaufmännische Daten
| Artikelnummer | 2151794 |
| Hauptwarengruppe | Trockenläuferpumpen, Standard |
| Warengruppe | Wilo-CronoLine-IL |
Ausschreibungstext
Einstufige Trockenläufer-Kreiselpumpe in
Inline-Bauform für Rohreinbau oder
Fundamentaufstellung. Schwingungs- und
geräuscharme Blockbauart mit Laterne und
starr verbundenem Standard- Flanschmotor
(Norm-Motor). Mit zwangsumfluteter,
drehrichtungsunabhängiger Faltenbalg
Gleitringdichtung und
kavitationsreduzierendem Laufrad.
Flansche mit Druckmessanschlüssen R 1/8.
Pumpengehäuse und Laterne sind
kataphoresebeschichtet.
Serienmäßig Motoren in IE3-Technologie.
Pumpen mit Motoren >= 5,5 kW verfügen
serienmäßig über Kaltleiterfühler als
Motorschutz.
Der Motorklemmkasten <= 7,5 kW kann aus
Metall oder Kunststoff sein. Wenn ein
Metallklemmkasten zwingend erforderlich
ist, die entsprechende Sondervariante
bestellen. Die Motorklemmkästen > 7,5 kW
sind immer aus Metall.
Betriebsdaten
140 oC
Mindesteffizienzindex (MEI): 0.4
Motordaten
Motor-Effizienzklasse:
Netzanschluss:
Spannungstoleranz:
Motornennleistung: 75000 W
Nenndrehzahl: 1450 U/Min
Nennstrom: 139 A
Leistungsfaktor: 0.82
Fördermedium: Water
Motorwirkungsgrad 50
Motorwirkungsgrad 75
Motorwirkungsgrad 100
Isolationsklasse: F
Schutzart:
Werkstoffe
Pumpengehäuse: 5.1301/EN-GJL-250
KTL-coated
Laufrad: Grey cast iron
Welle: Stainless steel
Min. Medientemperatur: -20 oC
Wellendichtung: AQ1EGG
Laterne: 5.1301/EN-GJL-250 KTL-coated
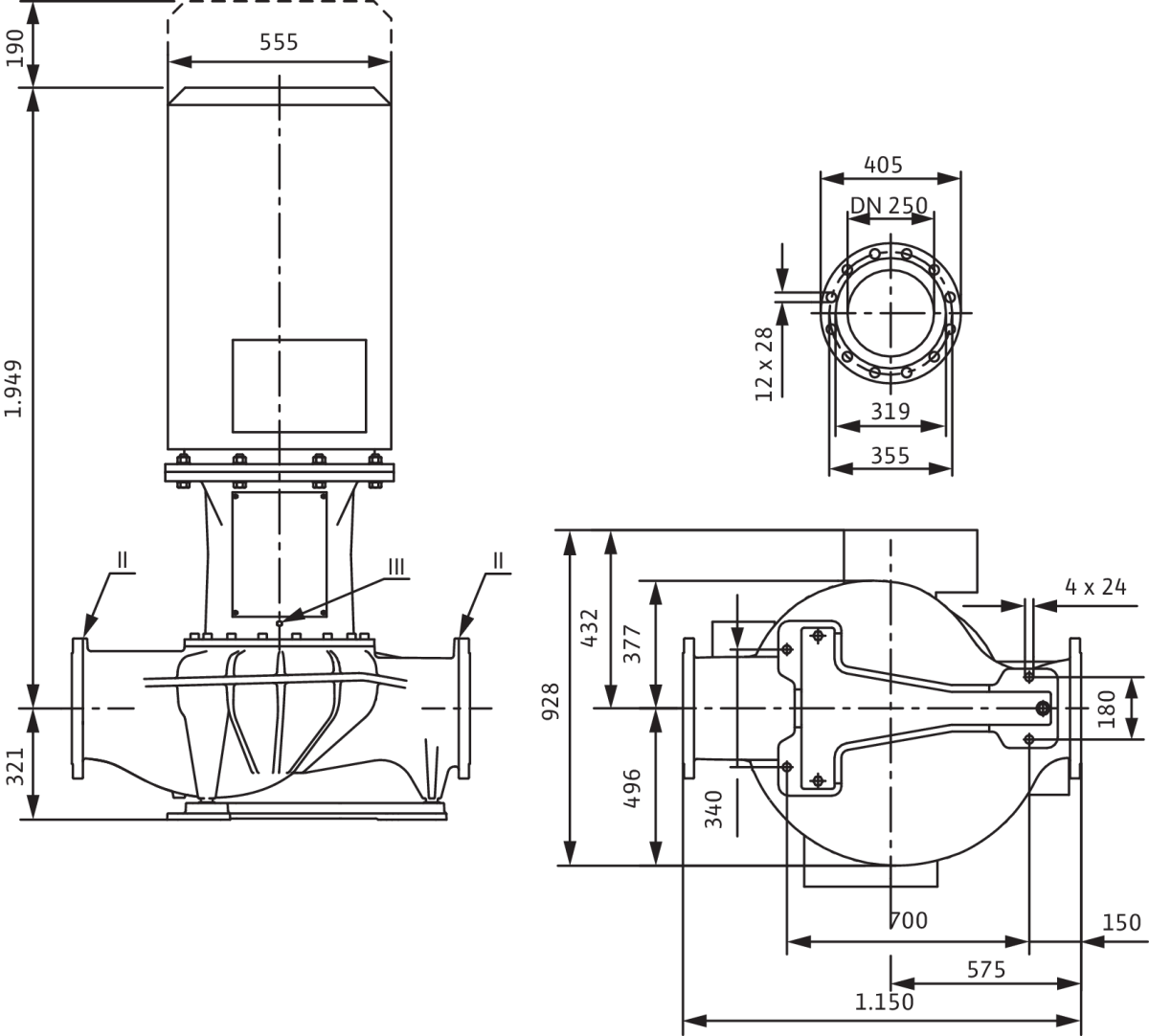
Einbaumaße
Saugseitiger Rohranschluss: DN 250
Druckseitiger Rohranschluss: DN 250
Bestellinformationen
Fabrikat:
Produktbezeichnung: CronoLine-IL
250/375-75/4
Gewicht netto ca.: 1362 kg
Max. Medientemperatur: 140 oC
Artikelnummer: 2151794
Min. Umgebungstemperatur: -15 oC
Max. Umgebungstemperatur: 40 oC
Maximaler Betriebsdruck: 16 bar
Auslegungshinweis: 16 bar bis 120 oC, 13
bar bis





Instructions/operating instructions
Installation instructions